Відносно нові конструкції універсального призначення дозволяють істотно покращити зовнішній вигляд будівель, мінімізувати втрати енергії на обслуговування, підвищити комфорт проживання.

Світлопрозорі конструкції з алюмінієвих профілів
Де використовуються світлопрозорі алюмінієві профільні конструкції?
- Зимові сади. Встановлюються як окремо, так і на дахах котеджів. Дозволяє вирощувати різноманітні теплолюбні рослини цілий рік. Завдяки високим показникам енергоефективності вони знижують втрати для підтримки сприятливої температури. Велика скляна площа забезпечує максимальне природне освітлення.
Зимовий сад
- Теплиці. Вони можуть мати різні розміри і використовуватися як сезонно, так і цілорічно. Використовуються для вирощування квітів, овочів, розсади та ін. Розміри залежать від побажань споживачів.
Теплиця
- Вікна і двері. Зараз широко використовуються традиційні конструкції, які встановлюються в будівлях різного призначення: житлових, промислових, комерційних, державних тощо.
Скляні двері
- Атріуми.Нещодавно використаний архітектурний елемент сучасного будівництва. Атріум — внутрішній простір будинку округлої форми; до нього примикають виходи кількох поверхів. Встановлюється в престижних котеджах, торгових залах і т.д.
Атріум
- Зенітні прозорі ліхтарі. Додаткове освітлення будинку природним світлом. Змонтовані як частина даху, вони мають різну форму і корисну площу. Розрахований на значні вітрові та снігові навантаження.
Мансардне вікно – вид прозорої покрівлі, що забезпечує природне верхнє внутрішнє освітлення об’єктів
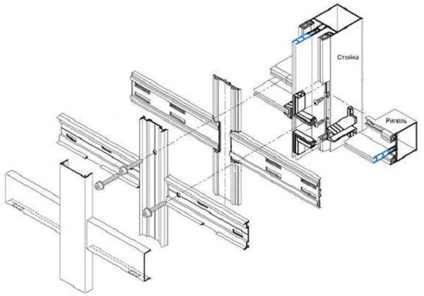
- Фасади – ригельні.Назва пов’язана з особливостями фіксації. Конструкції складаються з опорних вертикальних стійок, до яких кріпляться горизонтальні поперечини; склопакети вставлені зовні в технологічні виїмки алюмінієвих опорних пластин.
Фасади ригельні
- Напівструктурні фасади. Мають гладку зовнішню поверхню, кріпильні елементи монтуються з двох сторін.
Напівструктурні фасади з алюмінієвих профілів
- Структурні фасади. Використовується мало кріплень; склопакети кріпляться високоміцним силіконовим герметиком. Поверхня фасаду ідеально рівна.
Структурне скління

Структурний фасад
- Модульні фасади. Окремі модулі виготовляються на заводі, а готові конструкції збираються на будівлі. Завдяки такій технології процес монтажу займає мінімум часу, знижуючи кошторисну вартість будівельних робіт.
Модульне (елементне) скління
Є багато варіантів за розмірами та архітектурними особливостями. Для кожної будівлі потрібно підбирати індивідуальний варіант, враховуючи стиль, конструктивні особливості будови та побажання власника. Якщо у вас недостатньо досвіду для вибору алюмінієвої конструкції, зверніться за порадою до професіоналів.

Скління на спайдерах
Переваги та недоліки світлопрозорих алюмінієвих профільних конструкцій
Виготовляється зі сплавів АД31Т1, АД31Т1(25), АД31Т1(22), 6060Т66 і 6060Т6, технічні параметри відповідають вимогам ГОСТ 22233-2001.

Хімічний склад
За багатьма експлуатаційними характеристиками конструкціям немає рівних серед використовуваних раніше будівельних матеріалів.

Алюмінієва рама легка, міцна і довговічна

При проектуванні та зведенні будівель архітектори та дизайнери все частіше керуються принципом «більше світла»
Переваги
- Довговічність і невелика вага. За стійкістю до механічних навантажень до ваги алюмінієві сплави займають одне з провідних місць серед усіх відомих сплавів.
- Варіативність конструкції. Технологія виробництва дозволяє дизайнерам створювати оригінальні елементи різної геометрії та лінійних розмірів.
- Довговічність. Термін служби алюмінієвих конструкцій необмежений. Заміні підлягають лише ті елементи, які мають значні механічні пошкодження.
- Легко обслуговувати. Після монтажу конструкцій періодичне обслуговування не проводиться.

Для заповнення вітражної каркасної конструкції використовуються або скла, або склопакети

Використання спеціальних ізоляційних профілів при виробництві каркаса дозволяє істотно поліпшити теплозберігаючі властивості
Але є один дуже істотний недолік – висока вартість. За якість і високу продуктивність потрібно платити.

Світлопрозорі конструкції з алюмінієвих профілів коштують досить дорого
З яких елементів складаються світлопрозорі конструкції?
Перш ніж розглядати процес складання конструкцій, потрібно вивчити спеціальні технічні назви окремих елементів. Їх досить багато, але запам’ятати потрібно все.
- Профіль. Виготовляється методом екструзії і має різну товщину, довжину і ширину. Використовується як основний або додатковий несучий елемент.
- Суцільний профіль. Найпростіший елемент, використовуваний тільки в якості декору, не має закритих порожнин. Може мати різну геометрію і товщину, лицьова частина покрита порошковими фарбами.
- Повний профіль.Характеризується підвищеними фізичними характеристиками несучої здатності. Секція має замкнуті порожнини, за рахунок чого значно знижується теплопровідність. Від кількості порожнин залежить якість профілів.
- Комбінований профіль.Найскладніший елемент металевих алюмінієвих конструкцій, окремі частини з’єднані між собою термовставками, що зменшують втрати тепла.
- Імпост.Вертикальна або горизонтальна опора віконних стулок. Може бути посиленим або звичайним.
- Стулка.Відкривається частина вікна, товщина залежить від кількості стекол у склопакеті.
- Профільна камера. Замкнутий простір всередині профілю, який виконує роль теплоізолятора.
- кронштейн. Несучий елемент кріпиться до стіни і витримує всю вагу алюмінієвої конструкції.
- Гумові ущільнювачі.Вони бувають різного типу, висоти і довжини, вставляються в профільні пази. Використовується для ущільнення ділянок пломбування.
- Термовставка.Для усунення появи містків холоду використовується трубчастий еластичний елемент. Вставляється в сидіння на профіль.
- Бар тиску. Декоративна деталь, кріпиться до лицьової частини профілів засувками або саморізами.
- Сухарики.З його допомогою з’єднуються вертикальні і горизонтальні частини конструкцій.
- Розпірка. Використовується для контролю ширини склопакетів.
- Підтримуюча накладка. На нього спирається склопакет.
- Кріплення каблуків.Металеві пластини з отворами, за допомогою яких конструкція кріпиться до поверхонь анкерами.
- Бісероплетіння бісером. Декоративна пластикова засувка, використовується у вікнах і дверях.
Деякі виробники комплектують свою продукцію додатковими додатковими деталями; назва та призначення вказуються в інструкції.

Стовпчастий фасад, схема

Особливості алюмінієвого фасадного скління

Алюмінієві системи кріплення підвісних вентильованих фасадів
Технічні вимоги до алюмінієвих конструкцій
Значення фізичної міцності, експлуатаційних параметрів і граничних відхилень лінійних розмірів встановлені Євразійською радою зі стандартизації, метрології та сертифікації (EASC). Для віконних блоків допускаються різні способи відкриття стулок.

Вікна з різними способами відкривання
В опалювальних приміщеннях обов’язкове використання теплозберігаючих профілів.
Для підвищення стійкості конструкції площа стулок ≤ 2,5 м2, а вага разом зі склопакетом ≤ 100 кг. Максимальні розміри дверей 210 см у висоту і 120 см в ширину. Дверні профілі не можуть бути вище 210 мм і шириною 90 см. Якщо потрібне використання великогабаритних конструкцій, то для них необхідно проводити окремі розрахунки для кожної навантаженої одиниці, включаючи петлі та інші додаткові елементи. Стійкість до постійних статичних навантажень площини стулки ≥ 1200 Н, несучість в кутах ≥ 400 Н.
Усі конструкції повинні мати спеціальні отвори для відведення дощової води та систему відводу внутрішніх порожнин склопакетів. При цьому елементи природної вентиляції та водовідведення не повинні негативно впливати на показники теплозбереження. Конструкція повинна передбачати аварійне аварійне відкривання ззовні в разі аварійної ситуації.
Алюмінієві сплави, використовувані для виготовлення профілів, за хімічним складом і фізичними характеристиками повинні відповідати вимогам чинного ГОСТ 22233.
ГОСТ 22233-2001.Профілі пресовані з алюмінієвих сплавів для світлопрозорих огороджувальних конструкцій. Технічні умови. Файл для завантаження
ГОСТ 22233-2001
ГОСТ 31014-2002. Поліамідні склонаповнені профілі. Технічні умови. Файл для завантаження
ГОСТ 31014-2002
Теплоізоляційні вкладиші виготовлені з поліаміду по ГОСТ 31014; для зниження теплопровідності повітряні камери профілів можуть бути заповнені пінопластом різних марок; це найякісніша та найдорожча продукція. З’єднання теплоізоляторів і ущільнювачів надійне і гарантує герметичність не менше десяти років експлуатації.
Довговічність профілів для найбільш навантаженого блоку повинна забезпечувати більше 40 років експлуатації, і всі компоненти повинні відповідати цьому ж критерію. Всі елементи, які безпосередньо контактують з алюмінієм, мають анодно-оксидне покриття. За статичним навантаженням конструкції повинні витримувати не менше 500 Н, а за крутним моментом ≥ 25 Н/м.
Технологія монтажу конструкцій
Алюмінієві світлопрозорі профільні конструкції на даний момент є найдорожчими елементами. Настійно не рекомендуємо займатися їх проектуванням, монтажем і установкою самостійно, якщо у вас немає досвіду розрахунку елементів конструкції. Помилки призводять до псування продукції, що є не тільки втратою часу та грошей, але й небезпекою отримання травм.
Збірка конструкцій повинна проводитися в суворій відповідності з конструкторською документацією, в якій вказуються не тільки розміри, але і технічні характеристики елементів. Якщо ви можете самостійно розрахувати навантаження в кожному з них, враховуючи конкретну геометрію, розміри, місце установки, вітрове і снігове навантаження та інші чинники, що впливають на зусилля, то робіть документацію без допомоги професіоналів.
важливо. Не поспішайте різати профілі за цими розмірами; кілька разів перевірити точність вимірювань. Пам’ятайте, що ви ніколи не зможете подовжити занадто короткий виріб; вам доведеться викинути його. А це дуже негативно позначається на кінцевій вартості продукції.
Як зібрати фасадну систему?

Схема складання
Крок 1.За вказаними розмірами прикріпіть хлопавки до фасадного профілю.

Фасадний профіль

Сухарики
Попередньо підготуйте шаблон; з його допомогою потрібно закріпити всі елементи з одного боку. Для шаблону відпиляйте болгаркою шматок профілю довжиною до одного сантиметра. Кріплення здійснюється міцними металевими шурупами; розмір шурупів повинен бути розрахований або вказаний в документації на збірку конструкції.

Зразок
Крок 2.Зніміть захисну поліетиленову плівку в місці кріплення хлопавок. Розмістіть шаблон на профілі на розрахунковій відстані від торця, вставте в нього хлопавку.
важливо. Якщо при монтажі фасадної системи чистова підлога ще не готова, то підніміть блок на його позначку (нульовий рівень). Дно вертикальної стійки заливається бетоном, на нього укладається фінішна підлога, крекер повинен знаходитися на одній горизонтальній площині з фінішним покриттям. Те ж саме потрібно враховувати і зі стелею. Якщо він ще не готовий, то закріпіть хлопавку нижче. Скільки залежить від конкретної конструкції стелі.
Вставте хлопавку в шаблон і просвердліть чотири отвори. Практики рекомендують використовувати саморізи з напівсферичною головкою; вони можуть витримувати підвищені навантаження. За цими показниками їм поступаються прес-шайби. Закручуйте шурупи без зайвого старання, різьблення не повертайте. При виникненні такої проблеми вкручуємо туди ж саморіз трохи більшого діаметру. Якщо склопакет подвійний або потрійний, то надійніше кріпити сухарики болтами і гайками. Переконайтеся, що хлопавка щільно притиснута, перевірте надійність фіксації.

Кріплення хлопавки

Кріплення другої хлопавки

Виправлений зломщик
Крок 3.Після завершення кріплення сухарів на протилежних профілях обов’язково перевірте їх положення. Розмістіть два елемента один навпроти одного, краю хлопавок повинні розташовуватися по одній лінії. Це вкрай важливо, інакше кути будуть не 90°, і склопакети неможливо буде вставити.

Сухарики повинні бути на одному рівні
Крок 4.Прикріпіть кріпильні каблуки до спеціальних вставок; часто в якості вставок використовуються ті ж хлопавки, тільки довгі.

Крекери для кріплення п’ят
Відповідальні виробники поставляють їх у комплекті. Якщо ні, то доведеться зробити це самостійно, підготувати пластини і нарізати різьблення в торцевих порожнинах хлопавок. Довжина п’яткової хлопавки становить приблизно 6-8 сантиметрів. Прикріпіть металеву пластину (п’яту) анкерами до довгої хлопавки; потім вставляється в порожнистий профіль.

Прикрутіть пластину
Плита довша за профіль і має два додаткових отвори, за допомогою яких підставка кріпиться до підлоги і стелі. Дві п’яти кріпляться зверху, а дві – знизу конструкції.

Заставні, 4 шт
Крок 5.Приступаємо до установки поперечин. Поперечини вставляються в хлопавки, на внутрішніх бічних поверхнях яких є спеціальні кріпильні гнізда для саморізів. Щоб вони трималися на місці, прикріпіть їх саморізами. Щоб отвори на поперечинах збігалися з гніздами кріплення, зніміть мірки штангенциркулем. Дізнайтеся висоту сидінь і просвердліть отвори Ø5 мм в перекладинах на однаковій відстані.

Розмітка і свердління отворів

Дірки
Практичні поради. При свердлінні отворів в алюмінієвих профілях стежте за тим, щоб сколи не дряпали фарбу. Своєчасно очищайте свердло від стружки, що скупчилася. Алюмінієві сплави мають неприємну властивість – вони постійно забивають канавки свердла, воно погано працює і перегрівається.
Крок 6.Вставте в пази профілів ущільнювачі склопакетів. Вони мають різну висоту в залежності від товщини склопакетів.

Пломби можуть бути різної товщини

Установка пломб

Пломби
Прогумуйте поперечини з запасом ущільнювачів приблизно в п’ять міліметрів. Це необхідно для того, щоб при температурному розширенні герметик постійно щільно прилягав до поверхонь. Потім, під час остаточного складання, виступаючий наконечник стискається та вставляється на місце в паз.
Крок 7Підготувавши всі елементи, зберіть конструкцію в єдине ціле. По черзі вставте поперечини у вертикальні стійки; вони повинні поміститися в закручені крекери. Кріпимо елементи саморізами в просвердлені отвори. Рекомендуємо використовувати саморізи з потайною головкою. Вони надійно тримаються, і в разі незначних похибок не завадять вставити склопакет.

Сполучні елементи
Крок 8Щоб зовнішній алюміній не торкався внутрішнього і тепло не втрачалося, встановіть термоміст (термовставку). Встановлюється в спеціальні монтажні пази профілів, пази розташовані посередині елементів. Обережно розмістіть термоміст, переконавшись, що він підходить на місце по всій довжині.

Збірка конструкції

Встановити термоміст

Встановлений елемент
Ціни на популярні моделі викруток
Викрутки
Відео – Як монтується фасадна система. Скління

Каталог
Alumark. Виготовлення та монтаж фасадних конструкцій. Інструкції щодо скачування
Інструкції
Ціни на риштування
Будівельні ліси
Відео – Монтаж алюмінієвих вітражів
Відео – Монтаж алюмінієвого вітража (частина 2)
Відео – Монтаж вітража, частина 3
Види фасадних систем
Перед початком роботи по склінню фасадів необхідно підібрати оптимальний варіант для кожного конкретного випадку. Сьогодні існує кілька видів, кожен з яких має свої особливості.
Теплий і холодний.Якщо приміщення опалюється, то для економії витрат на підтримку сприятливої температури потрібно вибирати теплий варіант скління фасаду з алюмінієвих профілів. Тепле скління має не менше склопакетів; для створення конструкції використовуються спеціальні профілі з декількома повітряними камерами всередині. Вартість досить дорога.

Види профілів
Холодний обійдеться набагато дешевше, вага конструкції незначний, а для монтажу можна використовувати дешеві однокамерні профілі. Крім невеликої кількості камер, такі профілі мають тонкі стінки – для виготовлення використовується менша кількість дорогого алюмінієвого сплаву. В результаті продажна ціна значно нижча.
Безкаркасні та каркасні конструкції.Для безкаркасних профілі не потрібні; існує інша технологія монтажу. А для створення каркасів використовуються алюмінієві профілі та додаткові елементи. Каркасні рами можуть бути декількох видів:
- постфрамугові;
- модульні;
- структурні або напівструктурні.
Постфрамугаскладаються з вертикальних несучих стійок і горизонтальних поперечин. Параметри металопрофілю підбираються в залежності від розміру конструкції і характеристик склопакетів. Як збираються такі конструкції, ми описали вище.

Стінкові системи

Схема кріплення скла в ригельній системі скління фасадів
Файл для завантаження. Схеми підключення
Схеми підключення

Прямий фасад стоєно-ригельної конструкції

Прямий ригельний фасад, склопакет 24 мм

Прямий ригельний фасад, стулка, що відкривається всередину

Зігніть площину всередину до 90°

Зігніть площину назовні до 90°

Зігніть площину назовні на 45°

Зігнути площину всередину до 90°, відкриваючи двері

Вузол кріплення до міжповерхового перекриття

Використане кронштейнне рішення забезпечує широкий 3D діапазон регулювання положення фіксованої стійки, забезпечує мінімальний зазор між фасадом і несучим покриттям.
Модульний.Виготовляються за ескізами споживачів на спеціалізованих підприємствах і поставляються в готовому вигляді. Окремі модулі збираються на місці. Завдяки такій технології скорочується час монтажу та виключаються ризики неправильного монтажу. Але, на жаль, вартість конструкції значно зростає.

Модульна система скління

Проектування модульного елементного склопакета
Структурний.Всі кріплення знаходяться всередині конструкції і непомітні зовні. Вони мають покращені конструктивні характеристики, але є обмеження по висоті будівель. Конструкції не мають достатнього запасу міцності, вага конструкції обмежена.

Структурне скління

Система структурного скління Alusit
Напівструктурний.По міцності вони перевершують конструкційні і мають додаткові армуючі елементи.

Напівструктурні фасади також створюють із застосуванням структурного скління, але є ряд відмінностей від повністю структурних фасадів.

Організація переходу від похилої частини до вертикальної в напівструктурному типі скління.
Монтаж фасадної системи на місце
важливо. Монтаж фасадної системи з алюмінієвих профілів здійснюється без склопакетів. При наявності віконних стулок їх демонтують.
Крок 1.Виміряйте розміри отвору в стіні, перевірте, чи відповідають вони параметрам фасадної системи. При необхідності збільшити або зменшити отвори; Оптимальна відстань між стінами і елементами конструкції становить 1-2 см.
Крок 2.Акуратно підніміть зібрану конструкцію і поставте на місце. При підйомі прикладайте зусилля рівномірно; роботу повинні виконувати не менше двох осіб. Вирівняйте конструкцію строго по вертикалі і зафіксуйте її положення клинами.

Підйом конструкції
Крок 3.По периметру профілів просвердлите отвори для анкерів, вставте їх на місце і закріпіть. Закріпіть п’яти зверху і знизу конструкції.
Крок 4.За допомогою пінополіуретану заповніть щілини між алюмінієвою конструкцією та отвором у стіні. Перед спінюванням ретельно змочіть поверхні. Волога не тільки істотно підвищує адгезію матеріалів, але і прискорює час затвердіння піни.

Фасадне скління

Спінювання
Крок 5.Після застигання зріжте піну, що виступає, і вирівняйте поверхні штукатуркою.
Крок 6.Акуратно вставте склопакет і вставте штапики на місце.

Монтаж алюмінієвих конструкцій
Тепер, коли монтаж конструкції завершено, можна приступати до обробки приміщення. Якщо підлоги не оброблені, докласти максимум зусиль, щоб нижня фрамуга мала упор по всій довжині. Це значно зміцнює конструкцію і підвищує безпеку експлуатації. Якщо при установці склопакетів виявлені коливання, обов’язково знайдіть причину і усуньте її. Категорично заборонено встановлювати склопакети в крихкі конструкції.

Фасад будівлі виконано з використанням світлопрозорих конструкцій

Алюмінієві конструкції
Відео – Алюмінієві світлопрозорі конструкції
FAQ
Що таке алюмінієві світлопрозорі конструкції у приватній архітектурі?
Алюмінієві світлопрозорі конструкції — це елементи будівлі, які використовують алюмінієві профілі та скло для створення сучасних фасадів. Вони забезпечують максимальну відкритість і природне освітлення всередині приміщення. Часто такі конструкції використовуються для першокласних панорамних вікон, які дозволяють насолоджуватися виглядом навколишнього середовища, залишаючись надійними та енергоефективними.
Які переваги алюмінієвих конструкцій порівняно з іншими матеріалами?
Багато фахівців зазначають, що алюмінієві конструкції мають низку переваг. Передусім це міцність і легкість матеріалу, що дозволяє створювати великі віконні площі без значного збільшення ваги. Далі йде стійкість до корозії, що є критично важливим, особливо в регіонах з високою вологістю. Окрім того, на практиці часто помітно, що алюміній не потребує додаткового догляду, на відміну від дерева, яке необхідно регулярно обробляти захисними засобами. Також, завдяки спеціальним покриттям, алюміній може бути будь-якого кольору, що дає архітекторам свободу у виборі дизайнерських рішень.
Які недоліки алюмінієвих конструкцій можуть вплинути на вибір?
Незважаючи на численні переваги, алюмінієві конструкції мають й деякі обмеження. Однією з таких є висока теплопровідність матеріалу. Це може вимагати додаткових заходів для теплоізоляції, що збільшує вартість проекту. Наприклад, у старих будинках рекомендовано замінювати холодне скління на тепле для досягнення комфортного мікроклімату. Крім того, вартість таких конструкцій може бути вищою в порівнянні з іншими матеріалами, що також потрібно врахувати при плануванні бюджету.
Як обрати алюмінієві конструкції для свого будинку?
Вибір алюмінієвих конструкцій залежить від кількох ключових факторів. По-перше, визначте, яке саме приміщення потребує покращення — житлова кімната, кухня чи, наприклад, веранда. Потім оцініть кліматичні умови вашого регіону і вирішіть, наскільки важлива енергоефективність. Наприклад, у зимових регіонах варто розглядати варіанти з терморозривом. Особливу увагу потрібно приділити зовнішньому оформленню вікон, яке вплине на загальний вигляд будинку. Не забувайте про консультацію з досвідченими архітекторами та інженерами, які допоможуть зробити правильний вибір.
Коли доцільно використовувати алюмінієві світлопрозорі конструкції?
Алюмінієві конструкції доцільно використовувати у випадках, коли потрібно забезпечити якомога більше природного світла в будинку. Вони ідеальні для просторів з гарним видом на природу, наприклад, у схилах гір або біля води. В урбаністичних умовах такі конструкції також можуть стати перевагою завдяки своїй дизайнерській гнучкості і можливості створення унікальних архітектурних форм. Однак, не забувайте враховувати необхідність додаткової теплової ізоляції, якщо плануєте встановлювати їх у регіонах з холодним кліматом.
Які типові помилки при установці алюмінієвих конструкцій?
Одна з найпоширеніших помилок — це вибір неправильного типу скла. Багато власників будинків забувають про важливість багатокамерних склопакетів і встановлюють звичайне скло, яке не забезпечує належної теплоізоляції. Ще одна часта помилка — недостатня увага до ущільнювальних матеріалів, що може призвести до протягів і втрати тепла. Також важливо правильно виконати покрівельні роботи, щоб уникнути затікання води. Нарешті, недосвідчені установники можуть неправильно встановити конструкцію, що призводить до деформацій чи поганого функціонування системи.
Які приблизні витрати на встановлення алюмінієвих конструкцій?
Вартість встановлення алюмінієвих конструкцій може значно варіюватися залежно від розміру проекту та обраних матеріалів. На практиці можна спостерігати, що базові конструкції можуть коштувати від кількох тисяч гривень за квадратний метр, тоді як преміум-виконання з покращеними теплоізоляційними властивостями можуть потребувати значно більших інвестицій. Важливо враховувати і витрати на фасадні роботи, які впливають на кінцеву суму. Не забувайте про те, що економія на матеріалах чи роботах може обернутися більшими затратами в майбутньому через необхідність ремонту чи заміни конструкцій.
Як алюмінієві конструкції впливають на енергоефективність будинку?
Енергоефективність алюмінієвих конструкцій визначається кількістю тепла, яке вони здатні зберігати всередині будинку. На практиці це досягається завдяки використанню спеціальних термоізолюючих вставок і багатокамерних склопакетів. Важливу роль також відіграє якість монтажу, зокрема, герметичність стиків і використання якісних ущільнювачів. Якщо все зроблено правильно, такі конструкції не лише підвищують комфорт проживання, але й скорочують витрати на опалення і охолодження, роблячи будинок більш енергоефективним.

