Вініловий сайдинг – сучасний вид оздоблювального матеріалу, який використовується для оздоблення фасадів. З його допомогою можна надати акуратний і оригінальний зовнішній вигляд будь-якій споруді. Матеріал досить простий в монтажі, але просто прибити його до стін будинку не вийде. Для цього вам знадобляться додаткові елементи для вінілового сайдинга, розміри яких відрізняються в залежності від виробника оздоблювального матеріалу.

Додаткові елементи для вінілового сайдинга: розміри

Н-профілі для сайдинга
Особливості вінілового сайдинга
Виробництво вінілового сайдинга почалося в кінці 50-х років ХХ століття. Зовні вона нічим не відрізняється від фасадної дошки, але головною її перевагою є довговічність. Він не втратить свого зовнішнього вигляду десятиліттями. Йому не страшні перепади температури, не страшні зливи, вітри і сніг, тому його можна використовувати практично в будь-яких кліматичних умовах.

Вініловий сайдинг
Примітка! Якісний вініловий сайдинг не вицвітає більше 10 років. За цей час цілком реально встигнути спорудити кілька прибудов, але при цьому вони не будуть відрізнятися один від одного за кольором. Звичайно, мова не йде про неякісний матеріал.

Розміри і товщина вінілового сайдинга

Правила монтажу рядових сайдингових панелей
Вініловий сайдинг виготовляється методом екструзії, коли сировина продавлюється через спеціальні отвори, в результаті чого виходять довгі вінілові смуги певних параметрів. Отриману стрічку розрізають і формують, надаючи їй робочий профіль.

Виготовлення вінілового сайдингу
Крім того, в більшості випадків сайдинг зараз виготовляють так званим методом коекструзії, коли сайдингова панель складається з двох шарів, при цьому шари з’єднуються між собою на молекулярному рівні. Основний зовнішній шар становить приблизно 20-25% від загальної товщини панелі і захищає сам елемент обробки від негативного впливу природних факторів, таких як опади і ультрафіолетове випромінювання. А внутрішній шар тримає форму виробу і необхідний для того, щоб панель була довговічною і морозостійкою.
Вініловий сайдинг містить такі речовини.
- ПВХ або полівінілхлорид.У процентному співвідношенні ця речовина якраз і є основним – його частка в кожній панелі сайдинга становить близько 80% від загальної маси виробу. Від якості цього матеріалу буде залежати міцність і якість самого сайдинга. Недобросовісні виробники, які намагаються заощадити на етапі виготовлення сайдингу, можуть додавати ПВХ в сировину менше необхідного (всього 70%). Це істотно впливає на якість матеріалу. Сайдинг також може містити перероблені матеріали.
Сайдинг для блок-хауса
- Карбонат кальцію.Масова частка – не більше 15%. Речовина необхідна для заповнення структури сайдингового листа.
- Діоксид титануВходить до складу верхнього шару (до 10%). Завдяки цій добавці сайдинг захищений від ультрафіолетового випромінювання, добре зберігає свій колір і довше не тьмяніє.
- Бутадієн.Необхідний для стабілізації структури матеріалу. Масова частка – до 1%.
- Барвникнеобхідно для додання сайдингу певного кольору.
- Модифікаторивикористовуються для захисту матеріалу від механічних пошкоджень.

Вініловий сайдинг ділиться на кілька видів, кожен з яких має своє призначення.
Вініловий сайдинг не дарма став одним з найпопулярніших. Плюсів, окрім перерахованих вище, у нього ще маса. Це довговічність, простота обслуговування, пожежобезпечність і відмінна стійкість до хімічних речовин.
Однак для того, щоб обшити фасад вініловим сайдингом, недостатньо купити самі панелі – знадобляться ще й додаткові елементи. Які, до речі, виконують ще й естетичну функцію.

Вініловий сайдинг
Вініловий сайдинг ціни
Вініловий сайдинг
Навіщо потрібні додаткові елементи?
Додаткові деталі для монтажу сайдингових панелей використовуються для досягнення кількох цілей. Це полегшує процес монтажу, надає закінченого вигляду фасаду будівлі, фіксує панелі на стінах будинку. Завдяки їм вся обробка буде триматися максимально міцно і прослужить довше – за рахунок кутових доповнень, наприклад, вдається домогтися більшої герметичності всієї обшивки, а значить, волога і вітер будуть менше впливати на капітальні стіни будівлі. Якщо для монтажу сайдинга використовувати спеціальні деталі, то готова конструкція не буде гриміти під час розгулу стихії на вулиці, що особливо актуально для вітряних регіонів.

Додаткові елементи сайдинга
Примітка! Якщо при обшивці фасаду будинку сайдингом відмовитися від використання додаткових елементів, то надати закінченого і красивого вигляду будівлі не вдасться. Всюди з’являться тріщини і зазори, а конструкція буде виглядати неакуратно.
Всі додаткові елементи сайдинга мають спеціальні отвори, які дозволяють щільно і надійно приєднати їх до сайдингових панелей. У цьому випадку перфорація має довгасту форму, що дозволяє врахувати температурний коефіцієнт розширення і дозволяє уникнути деформації матеріалу під впливом температур. Загалом, між встановленими панелями та надставками не повинно бути зазорів і щілин.

Фотооблицювання вініловим сайдингом
Увага! Будь-яке здуття панелей є першою ознакою неправильного монтажу елементів або неякісного оздоблювального матеріалу.

Оздоблення будинку сайдингом
Види сайдингових доповнень
Для монтажу сайдинга використовуються два види додаткових деталей. Це декоративні або несучі елементи. Перші використовуються тільки для оздоблення будівлі, а другі необхідні безпосередньо для монтажу самих оздоблювальних панелей.

Фінішні та монтажні планки (додаткові елементи) для сайдингу
Елементи, необхідні для монтажу сайдинга.
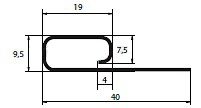
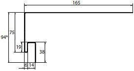
- J-профільнеобхідні для оформлення вертикальних швів, дверей і вікон; в нього будуть вставлятися самі сайдингові панелі. Використовується також для декорування софітів, торців фронтонів, можна використовувати для декорування кутів, але стик не буде закритий так добре, як при використанні спеціальних кутових елементів.
- Стартова смуга або планканеобхідно для того, щоб почати монтаж сайдингових панелей. Це головний елемент, без якого неможливо розпочати процес облицювання фасаду. Дошка встановлюється або в самому низу будівлі, або на краю стіни (в залежності від способу обшивки – горизонтально або вертикально), а самі панелі кріпляться до неї.
- Кутові елементинеобхідні для декорування внутрішніх або зовнішніх кутів будівлі. При цьому для обох продаються окремі види надбудов.
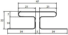
- H-профільз’єднання використовується для з’єднання двох сайдингових панелей, якщо обшитий фасад занадто довгий. Елемент також забезпечує з’єднання між софітними панелями.

Декоративні планки вінілового сайдинга
Для монтажу сайдинга необхідні спеціальні декоративні елементи.
- Фінішна планка, завдяки чому можна красиво завершити оздоблення стін сайдингом.
- Обшивка вікон та лиштва, використовуються для оформлення віконних і дверних прорізів, якщо вони втоплені в стіну.
- Водостічні жолобинеобхідно для відведення води від стін будівлі під час дощу.
- Скоси для карнизіввикористовуються для оформлення укосів і карнизів при невеликій ширині.

Додаткові елементи вінілового сайдингу Grand Line® Amerika
Примітка! Матеріал для виготовлення додаткових елементів такий же, як і самі сайдингові панелі. Від сайдингу вони відрізняються тільки структурою, формою і розміром.
Ціни на додаткові елементи вінілового сайдинга
Додаткові елементи вінілового сайдинга
Відео – Додаткові елементи для сайдинга
Чому потрібно враховувати розміри?
Всі додаткові елементи мають свої розміри. Вони відрізняються один від одного довжиною, шириною, конфігурацією. Причому відмінності спостерігаються не тільки між різними елементами, але і між ідентичними, що випускаються різними виробниками.
Примітка! Навіть у одного виробника, але в різних лінійках додаткові елементи можуть відрізнятися за параметрами. Більше того, немає спеціальних стандартів, які б регламентували розмір сайдингу та його складових.

Монтаж вінілового сайдингу
Довжина однієї сайдингової панелі у різних виробників може варіюватися від 2,5 до 4 м, ширина – від 20 до 30 см. Навіть товщина може варіюватися від 1 до 1,2 мм. Так само добавки відрізняються один від одного невеликими, але все ж помітними кількостями.
Тому так важливо при розрахунку кількості матеріалів, необхідних для обшивки фасаду будинку, правильно врахувати всі параметри як самого сайдинга, так і його додаткових елементів. Причому купувати всі комплектуючі потрібно в одного обраного виробника, щоб потім в процесі монтажу не виникало питань і невідповідностей. Розміри надбудов і сайдингових панелей також повинні підходити і підходити.

Вініловий сайдинг “Альта-Профіль”
Ціни на риштування
Будівельні ліси
Розміри додаткових елементів
Тепер розглянемо докладніше розміри деталей сайдинга від різних виробників. Особливою популярністю користується продукція компаній: VOX, Grand Line і Döcke.

Сайдинг Döcke (виробництво Німеччина)
Компанія VOX виробляє вініловий сайдинг, який ідеально підходить для оздоблення фасадів житлових будинків і офісних будівель. Продукція відрізняється довговічністю і якістю. Простота монтажу дозволяє облицювати фасад самостійно, не вдаючись до послуг фахівців.

Вініловий сайдинг VOX

Сайдинг Vox – матеріал польського виробництва, який спочатку отримав популярність у Європі та Туреччині
Таблиця. Розміри деталей сайдингу від VOX.
Софіт |
Довжина панелі – 2,7, ширина – 0,3 |
Стартова планка S-11 |
Довжина – 3,81 |
Зовнішній кут S-12 |
Довжина – 3,05 |
Внутрішній кут S-13 |
Довжина – 3,05 |
J-профіль S-15 |
Довжина – 3,81 |
Сполучна планка S-18 |
Довжина – 3,05 |
Віконна стрічка S-17 |
Довжина – 3,81 |
Віконна стрічка S-20 |
Довжина – 3,81 |
Фасадна планка S-19 |
Довжина – 3,81 |
Планка монтажна S-16 |
Довжина – 3,81 |
Планка фінішна С-14 |
Довжина – 3,81 |
Сайдинг Grand Line – високоякісний оздоблювальний матеріал, присутній на російському ринку вже більше 10 років. Компанія одна з небагатьох, яка виробляє як металевий, так і вініловий сайдинг.

Вініловий сайдинг Grand Line

Кольори вінілового сайдингу Grand Line
Таблиця. Розміри деталей сайдингу від Grand Line.
Стартова планка |
3.6 |
Зовнішній кут і внутрішній кут |
3 |
З’єднувальний Н-профіль |
3 |
Віконна планка |
3.05 |
Вітрова дошка або J-подібна фаска |
3 |
J-профіль і широкий J-профіль |
3/3.05 |
Фінішна планка |
3.6 |
Софіт |
3 |
Сайдинг Döcke є одним з найкращих продуктів цього типу на ринку. Сайдингові панелі та комплектуючі до них виготовляються з високоякісної сировини.

Сайдинг і додаткові елементи “Doke”

Сайдинг Docke Blockhaus

Вініловий сайдинг Docke
Таблиця. Розміри елементів сайдингу від Döcke.
Суцільний софіт |
3,05 або 1,85 (робоча ширина 0,305) |
Фінішний профіль |
3.05 |
H-профіль |
3.05 |
Зовнішній кут |
3.05 |
Внутрішній кут |
3.05 |
J-профіль |
3.05 |
Схил |
3.66 |
Формування |
3.05 |
J-фаска |
3.05 |
Відлив |
3.05 |
Почати профіль |
3.05 |
Крайовий профіль |
3.05 |
Привіконний профіль |
3.66 |
Поради щодо вибору

Підбір сайдинга та комплектуючих
Щоб монтаж сайдинга пройшов швидко і легко, необхідно з усією відповідальністю і увагою підійти до вибору матеріалів і комплектуючих.
- Вибирати слід тільки матеріали від перевіреного виробника, який на ринку оздоблювальних матеріалів вже багато років. При необхідності створення прибудов до будівлі буде набагато простіше придбати точно такий же сайдинг, як і раніше. Але компанія-одноденка може зникнути з ринку, і тоді доведеться потрудитися, щоб знайти хоча б зовні схожий матеріал і комплектуючі.
- Купувати лише доповнення і сам сайдинг потрібно в однієї компанії. Це дозволить уникнути невідповідності розмірів оздоблювального матеріалу, що спростить монтаж і збереже нерви.
- Для обробки окремих частин фасаду найкраще купувати спеціально призначені для цього елементи. Таким чином, вдасться домогтися максимального захисту безпосередньо стін будинку. В іншому випадку можуть утворитися тріщини і зазори, хоча деякі додаткові елементи відносно взаємозамінні.

Облицювання дерев’яним сайдингом

Використання вінілового сайдинга під колоду
Фінішна планка під сайдинг
Сайдинг добре підходить як для дорогого заміського котеджу, так і для простого заміського будинку. Однак одних тільки сайдингових панелей для обробки недостатньо – знадобляться і інші деталі, які називаються додатковими елементами, в тому числі –фінішна планка під сайдинг.
Розрахунок додаткових елементів
Одним з основних етапів підготовки до обшивки фасаду сайдингом є розрахунок необхідної кількості додаткових елементів. Наступні інструкції допоможуть вам це зробити.
Крок 1.Потрібно озброїтися рулеткою, олівцем, папером і калькулятором: вимірюються всі висоти, довжини і ширини, а також віконні і дверні прорізи, кути будинку. Потім складається точна схема конструкції, що обшивається, з максимальною точністю вказуючи на ній всі виміряні параметри.

Облицювання дерев’яним сайдингом
Крок 2.Перш за всевраховується сама кількість сайдинга. Для цього розраховується загальна площа кожної стіни, а з отриманого значення віднімається площа дверних і віконних прорізів. Далі отриманий результат ділиться на корисну площу однієї смуги сайдинга.

Приклад розрахунку сайдингових панелей
важливо! Роблячи розрахунки, обов’язково враховуйте кількість відходів і купуйте оздоблювальний матеріал з деяким запасом. Це стосується як сайдингу, так і додаткових елементів. Відходи становлять близько 7-10%. При складній конфігурації конструкції – до 15%.
Крок 3.Далі розраховується кількість стартових і фінішних смуг. Результат легко отримати в погонних метрах – вимірюється довжина всіх стін будинку, отриманий результат ділиться на довжину однієї дошки.

Розташування стартової та фінішної смуг
Крок 4.Кількість кутових планок розраховується наступним чином: підраховується кількість внутрішніх і зовнішніх кутів, а потім кожне значення множиться на висоту кута. Кінцевий результат ділиться на довжину кутової смуги.

Кутові планки
Порада! Краще розраховувати кількість дощок окремо для всіх кутів, щоб не довелося робити занадто багато з’єднань і збирати кутові дошки на одному з кутів із шматків і обрізків. Такі стики дуже ефектні.
Крок 5.J-профілі можна розрахувати, підсумувавши довжину і ширину всіх горизонтальних і вертикальних ділянок, тобто периметрів дверних і віконних прорізів, торців стін і т. д. Отриману цифру ділять на довжину однієї дошки.

J-профілі
Крок 6.Н-профіль розраховується, якщо дві смуги сайдинга з’єднуються між собою по довжині. Тут треба рахувати поштучно.

H-профіль
Крок 7Кількість віконних планок розраховується індивідуально (щоб не було стиків, які псують зовнішній вигляд), за умови, що при монтажі сайдингу одного J-профілю недостатньо. Тобто, якщо дверний або віконний проріз утоплений в стіну будинку більш ніж на 20 см.

Накладки на вікна та двері
Відео – Знімаємо заміри та розрахунки сайдингу та комплектуючих
Исходя из всего вышесказанного, можно сделать вывод, что без доборов обойтись при монтаже сайдинга не получится. Как минимум, придется купить планку стартовую, чтобы на нее крепить сайдинг-панели. Но лучше не пренебрегать и остальными элементами, тем более что они ускорят и облегчат монтаж отделочного материала на фасад дома.
FAQ
Що таке додаткові елементи для вінілового сайдингу?
Додаткові елементи для вінілового сайдингу—це комплектуючі, які використовуються для монтажу панелей. На практиці вони допомагають зберегти геометрію та естетичний вигляд фасаду. Типові елементи включають стартові планки, зовнішні і внутрішні кути, а також профілі для обрамлення вікон. Багато фахівців наголошують, що ці деталі критично важливі для тривалої експлуатації облицювання, адже вони забезпечують надійність конструкції і запобігають деформаціям через погодні умови.
Як правильно обрати допоміжні деталі?
Обираючи допоміжні деталі, важливо враховувати матеріал панелей і специфіку конструкції. У реальному житті це може бути непросто, адже асортимент на ринку великий. Але для оптимального вибору варто звернути увагу на сумісність матеріалів та кольорів, що допоможе зберегти однорідність оздоблення. Деталі для покрівлі та фасаду зазвичай мають пояснення щодо їх сполучуваності, що полегшує вибір.
Коли доцільно використовувати вініловий сайдинг?
Вініловий сайдинг доцільно використовувати, коли потрібна недорога, але довговічна і стійка до зовнішніх умов обшивка. Він ідеально підходить для приватних будинків, де важлива швидкість монтажу та мінімальний догляд. У міських квартирах його використовують рідше, але він все частіше захоплює ринок заміського житла. Водночас, сайдинг не підходить для історичних будівель, де важлива збереження автентичного вигляду.
Які типові помилки при установці вінілового сайдингу?
На практиці часто помітно, що основна помилка при установці сайдингу—це неправильне розрахування температурних зазорів. Внаслідок цього панелі можуть викривлятися при зміні температури. Також варто уникати недотримання інструкцій щодо кріплення, що може призвести до пошкодження облицювання під час вітрів. Використання непередбачених проектом додаткових елементів може суттєво знизити якість монтажу, тому важливо покладатися на перевірені рішення. Як кріпити блок-хаус також варто вивчити, аби уникнути неточностей.
Як впливають допоміжні елементи на термін служби вінілового сайдингу?
Допоміжні елементи значно впливають на довговічність сайдингу. Вони забезпечують гнучкість при температурних коливаннях і запобігають появі тріщин. Наявність якісних профілів забезпечує правильний відвід води і сприяє покращенню вентиляції, що запобігає утворенню конденсату. Це особливо важливо у вологих регіонах, де помилки у виборі елементів можуть стати критичними.
Які приблизні витрати на допоміжні елементи для сайдингу?
Витрати на допоміжні елементи варіюються в залежності від складності проекту та обраних матеріалів. У середньому, їх вартість може становити до 20% від загальних витрат на облицювання. Звісно, ціна може зрости, якщо використовуються більш дорогі профілі або ексклюзивні кольори. Перед покупкою варто врахувати як практичні аспекти, так і естетику, оскільки це інвестиція в довговічність і привабливий вигляд будинку. Вініловий сайдинг також варто розглядати разом із допоміжними елементами.
Які переваги та обмеження використання вінілового сайдингу?
Вініловий сайдинг має багато переваг: він легкий, стійкий до погодних умов, не вигорає на сонці і потребує мінімального догляду. Проте, є й обмеження. Наприклад, він може бути вразливим до механічних пошкоджень і не завжди підходить для всіх архітектурних рішень. Багато фахівців сходяться на думці, що правильний вибір матеріалів і допоміжних елементів може зменшити ці недоліки.
Як уникнути поширених проблем під час монтажу?
Для уникнення проблем важливо дотримуватись рекомендацій виробника і забезпечити правильний монтаж допоміжних елементів. На практиці це означає використання якісних матеріалів та інструментів. Варто також звернути увагу на якість робітників, оскільки підрядники без досвіду можуть допускати помилки в монтажі. Регулярні огляди допоміжних деталей—ключ до довговічності облицювання. При вирішенні більш складних завдань, розгляньте можливість консультування з експертами у сфері фасадних робіт.

Фінішна планка під сайдинг